Progetto esecutivo Stazioni Metropolitane

Servizi

Progettazione esecutiva

Luogo

 Atene (GR), Doha (QA)

Committente

Attiko Metro, SSF Ingenieur

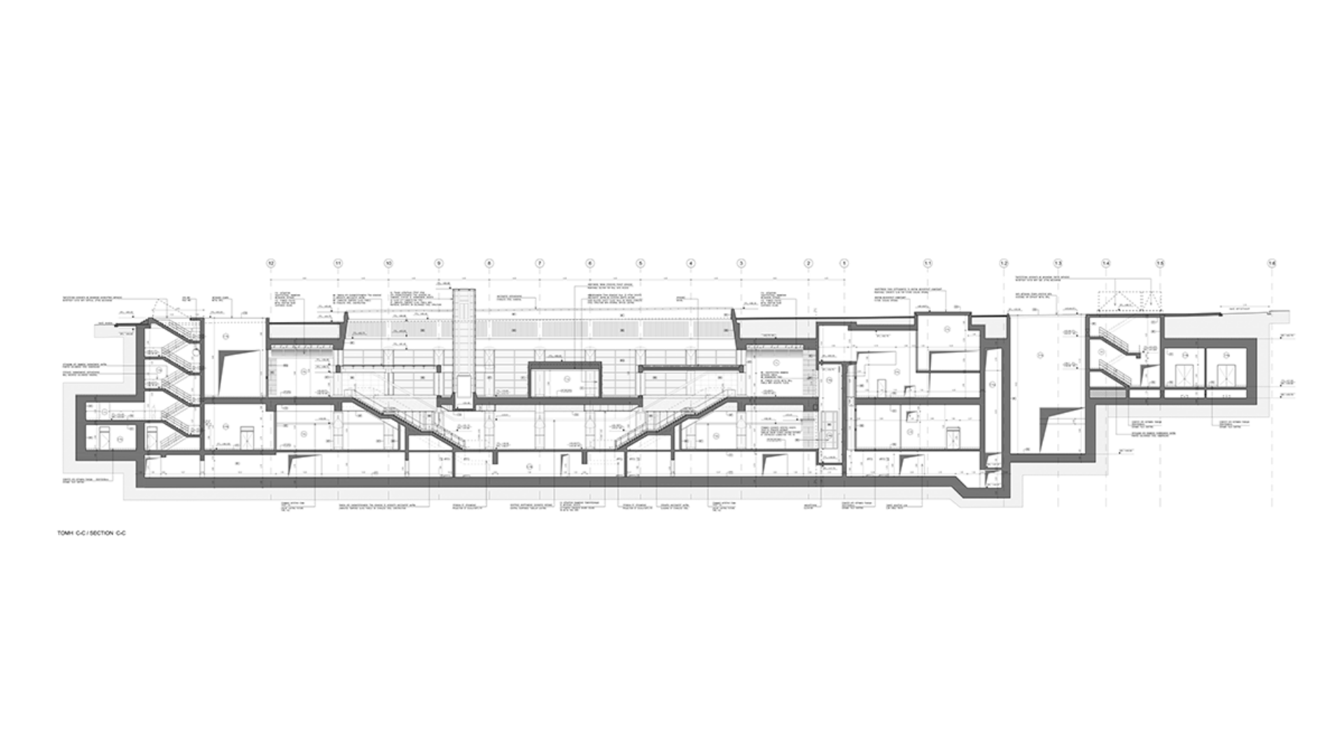
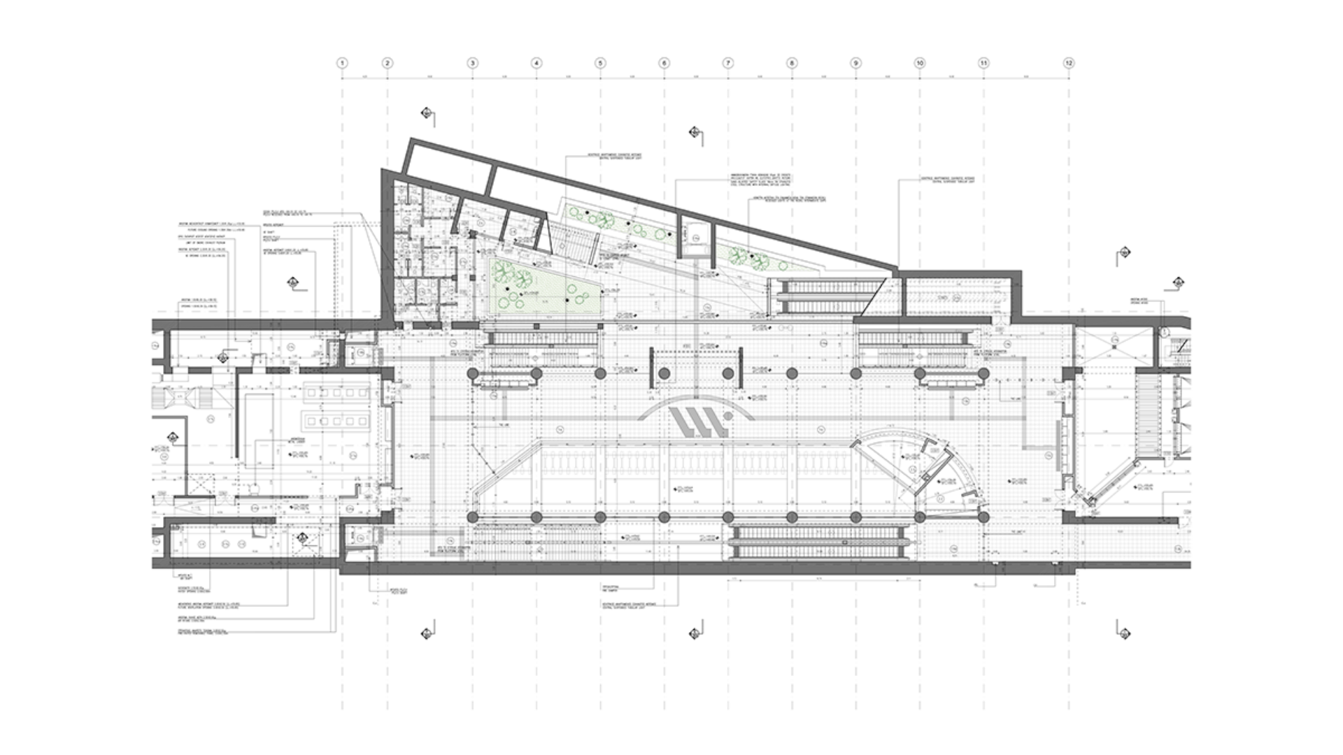
Il progetto architettonico elaborato nella fase esecutiva per una serie di stazioni metropolitane affronta la complessità tipica delle infrastrutture di trasporto pubblico ad alta intensità, con l’obiettivo di coniugare efficienza funzionale, sostenibilità operativa e qualità spaziale.

Il progetto esecutivo costituisce l’evoluzione e il completamento del progetto preliminare, sviluppando e affinando le soluzioni architettoniche e tecniche alla luce delle condizioni specifiche di ciascun sito.

Elemento centrale del processo è stato il coordinamento interdisciplinare tra progettazione architettonica e ingegneristica (strutture, impianti, sicurezza, trasporti), che ha garantito l’integrazione tra le varie componenti tecniche e il controllo delle interferenze. Tale sinergia ha permesso di assicurare la coerenza tra forma, funzione e realizzabilità.

Il layout delle stazioni è stato sviluppato per garantire chiarezza dei percorsi, accessibilità, gestione dei flussi e conformità normativa, con attenzione a sicurezza, sistemi di evacuazione e integrazione impiantistica. Gli spazi interni sono stati progettati con materiali durevoli e soluzioni tecniche orientate alla manutenzione semplificata e al comfort percepito.

Gli elementi emergenti in superficie (accessi, ventilazione, uscite di sicurezza) sono stati integrati nel contesto urbano in modo funzionale e riconoscibile, minimizzando l’impatto visivo. La modularità progettuale ha permesso l’adattamento alle specifiche condizioni di ciascun sito, mantenendo al tempo stesso un linguaggio architettonico coerente lungo l’intera rete.

In sintesi, il progetto architettonico esecutivo rappresenta un equilibrio tra rigore tecnico, visione progettuale e coordinamento disciplinare, contribuendo alla definizione di un’infrastruttura metropolitana contemporanea, efficiente e resiliente.

Altri nostri progetti

Conceria di Pelli Esotiche

INFRASTRUTTURE

Nuovo Ponte sul Torrente Vermenagna

INFRASTRUTTURE

GUIDO CREMASCHI

Architetto e co-fondatore

Philippe Smit is the Managing Director a.i. at UNS, where he brings a clear vision and a dynamic approach to management. Known for his ability to identify challenges and deliver creative, strategic solutions, Philippe combines boldness with a deep understanding of human insights. He encourages collaboration while maintaining a strong focus on results. With a passion for organisational development and talent growth, Philippe brings energy and clarity to his role, ensuring UNS continues to thrive as a global leader in innovative and sustainable design.